Trefod til støtterør med sidelæns udløb

Stativ til HVI-støtterør med HVI-ledere lagt indvendigt/udvendigt i/på støtterøret, med dobbeltklemme til tilslutning af 2x Rd 8-10 mm. Tilpasning til taghældningen op til maks. 10° ved hjælp af variabel fastgørelse til sokkelholder.

Den stabelbare betonsokkel, underlægspladerne og sokkelholdersæt til at fastgøre yderligere betonsokler fås hver for sig som tilbehør.

Bemærk: Oplysninger om materialekompatibilitet af taglederholdere og underlægsplader i forbindelse med tagdele kan rekvireres hos DEHN.

Lille trefod

Til indfangerstænger D40, DEHNiso-Combi støtterør med indfangerspids/stang eller HVI-leder lagt i/på støtterøret.

1 Product

Part No. 107390 DBS KB D50 RA680 V2A

GTIN 4013364478466, Customs tariff No. (EU): 85389099, Gross weight: 7.75 kg, PU: 1.00 Pakkestørrelse

Predecessor

Images

Additional information

Trefod, lille, StSt (sammenklappelig)
Stativ (sammenklappelig) til støtterør
D 50 mm med sideudløb eller indfangerstang
D 40 mm med reduktionstilbehør
Med dobbelt overligger til tilslutning af 2x Rd 8-10 mm
Til opstilling med betonsokkel (vægt 17 kg)
Kompensation for taghældningsvinkler på op til 10°
Stabelbar betonsokkel (artikelnr. 102 010)
Underlægsplade (artikelnr. 102 050)
Fatningsholdersæt (artikelnr. 107 396)
Reduktionstilbehør (Artikel nr. 107 399)
skal bestilles separat.
Stativ er dimensioneret efter
Eurokode 1 (DIN EN 1991-1-4 + DIN EN 1991-1-4/NA).
Materiale stativ: Rustfrit
Støtte: 50 og 40*) mm
Radius: 680 mm

fabrikat: DEHN
Type: DBS KB D50 RA680 V2A
artikelnr.: 107390
eller tilsvarende

Certificates

 

Technical data

Materiale stativ Rustfrit
Støtte 50 og 40*) mm
Radius 680 mm
Nødvendig plads til trefod 1175 x 1020 mm
Kun med adaptersæt artikelnr. 107 399.

Product 107390 was added to Notepad.

Product 107390 was added to the cart.


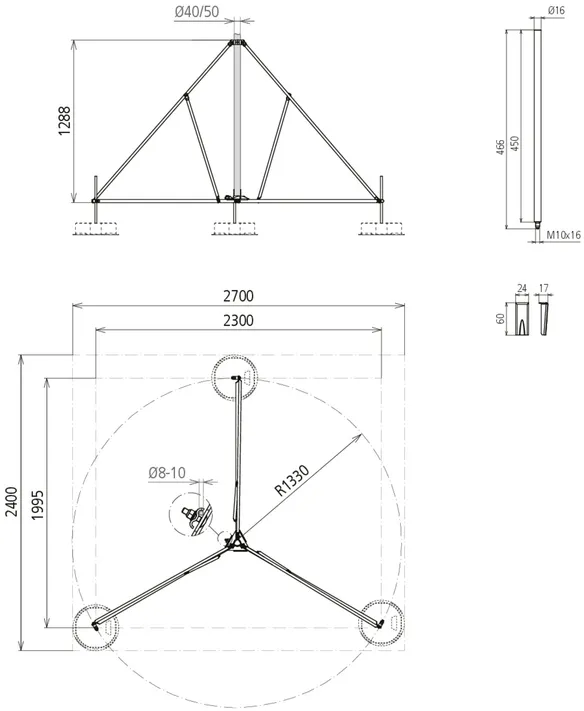
Stor trefod

Til indfangerstænger D40, DEHNiso-Combi støtterør med indfangerspids/stang eller HVI-leder lagt i/på støtterøret.

1 Product

Part No. 107391 DBS KB D50 RA1330 V2A

GTIN 4013364478473, Customs tariff No. (EU): 85389099, Gross weight: 15.60 kg, PU: 1.00 Pakkestørrelse

Predecessor

Images

Additional information

Trefod, stor, StSt (sammenklappelig)
Stativ (sammenklappelig) til støtterør
D 50 mm med sideudløb eller indfangerstang
D 40 mm med reduktionstilbehør
Med dobbelt overligger til tilslutning af 2x Rd 8-10 mm
Til opstilling med betonsokkel (vægt 17 kg)
Kompensation for taghældningsvinkler på op til 10°
Stabelbar betonsokkel (artikelnr. 102 010)
Underlægsplade (artikelnr. 102 050)
Fatningsholdersæt (artikelnr. 107 396)
Reduktionstilbehør (Artikel nr. 107 399)
skal bestilles separat.
Stativ er dimensioneret efter
Eurokode 1 (DIN EN 1991-1-4 + DIN EN 1991-1-4/NA).
Materiale stativ: Rustfrit
Støtte: 50 og 40*) mm
Radius: 1330 mm

fabrikat: DEHN
Type: DBS KB D50 RA1330 V2A
artikelnr.: 107391
eller tilsvarende

 

Technical data

Materiale stativ Rustfrit
Støtte 50 og 40*) mm
Radius 1330 mm
Nødvendig plads til trefod 2300 x 1995 mm
Kun med adaptersæt artikelnr. 107 399.

Product 107391 was added to Notepad.

Product 107391 was added to the cart.


Firbenet lille stativ

Til indfangerstænger D40, DEHNiso-Combi støtterør med indfangerpids/stang eller HVI-leder lagt i/på støtterøret.

1 Product

Part No. 107490 VBS KB D50 RA680 V2A

GTIN 4013364478480, Customs tariff No. (EU): 85389099, Gross weight: 10.38 kg, PU: 1.00 Pakkestørrelse


Images

Additional information

Firbenet stativ, lille, NIRO (sammenklappelig)
Stativ (sammenklappelig) til støtterør
D 50 mm med sideudløb eller indfangerstang
D 40 mm med reduktionstilbehør
Med dobbelt overligger til tilslutning af 2x Rd 8-10 mm
Til opstilling med betonsokkel (vægt 17 kg)
Kompensation for taghældningsvinkler på op til 10°
Stabelbar betonsokkel (artikelnr. 102 010)
Underlægsplade (artikelnr. 102 050)
Fatningsholdersæt (artikelnr. 107 396)
Reduktionstilbehør (Artikel nr. 107 399)
skal bestilles separat.
Stativ er dimensioneret efter
Eurokode 1 (DIN EN 1991-1-4 + DIN EN 1991-1-4/NA).
Materiale stativ: Rustfrit
Støtte: 50 og 40*) mm
Radius: 680 mm

fabrikat: DEHN
Type: VBS KB D50 RA680 V2A
artikelnr.: 107490
eller tilsvarende

Certificates

 

Technical data

Materiale stativ Rustfrit
Støtte 50 og 40*) mm
Radius 680 mm
Nødvendig plads til trefod 960 x 960 mm
Kun med adaptersæt artikelnr. 107 399.

Product 107490 was added to Notepad.

Product 107490 was added to the cart.


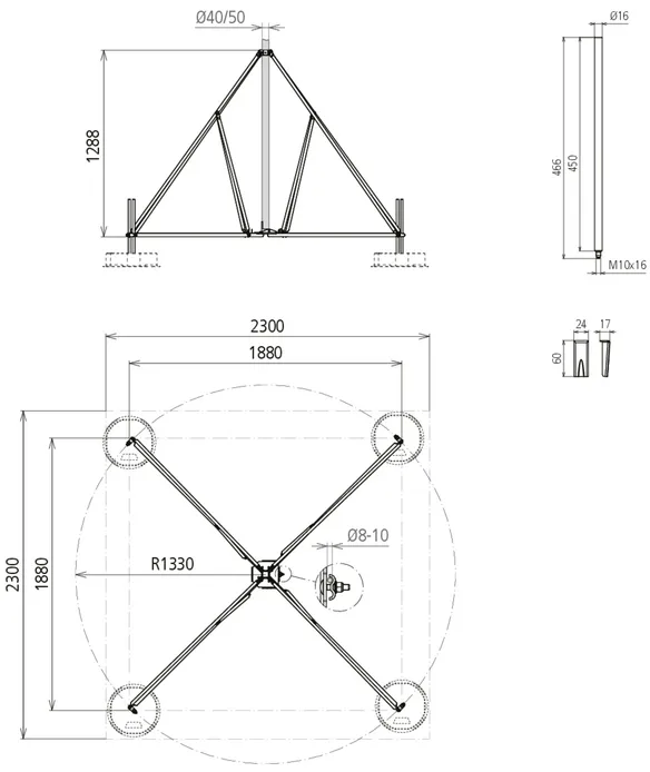
Firbenet stort stativ

Til luftafslutningsstænger D40, DEHNiso-Combi støtterør med luftafslutningsspids/stang eller HVI-leder lagt i/på støtterøret.

1 Product

Part No. 107491 VBS KB D50 RA1330 V2A

GTIN 4013364478497, Customs tariff No. (EU): 85389099, Gross weight: 17.63 kg, PU: 1.00 Pakkestørrelse


Images

Additional information

Firbenet stativ, lille, NIRO (sammenklappelig)
Stativ (sammenklappelig) til støtterør
D 50 mm med sideudløb eller indfangerstang
D 40 mm med reduktionstilbehør
Med dobbelt overligger til tilslutning af 2x Rd 8-10 mm
Til opstilling med betonsokkel (vægt 17 kg)
Kompensation for taghældningsvinkler på op til 10°
Stabelbar betonsokkel (artikelnr. 102 010)
Underlægsplade (artikelnr. 102 050)
Fatningsholdersæt (artikelnr. 107 396)
Reduktionstilbehør (Artikel nr. 107 399)
skal bestilles separat.
Stativ er dimensioneret efter
Eurokode 1 (DIN EN 1991-1-4 + DIN EN 1991-1-4/NA).
Materiale stativ: Rustfrit
Støtte: 50 og 40*) mm
Radius: 1330 mm

fabrikat: DEHN
Type: VBS KB D50 RA1330 V2A
artikelnr.: 107491
eller tilsvarende

 

Technical data

Materiale stativ Rustfrit
Støtte 50 og 40*) mm
Radius 1330 mm
Nødvendig plads til trefod 1880 x 1880 mm
Kun med adaptersæt artikelnr. 107 399.

Product 107491 was added to Notepad.

Product 107491 was added to the cart.


back to top