Palo di captazione per posa sotto tetto della conduttura HVI

Per il montaggio con elemento sovrapposto sul puntone.Posa interna non visibile della conduttura HVI nel tubo portante. La conduttura HVI viene condotta attraverso il tubo portante del puntone e posata nella zona della copertura.Vantaggi:
  • posa sotto tetto
  • montaggio con elemento sovrapposto con solo un tubo visibile
  • nessuna sollecitazione meccanica ad es. a causa del peso della neve
L'ordine minimo corrisponde a 6 m. Si deve indicare la lunghezza della conduttura in fase d'ordine (multipli di 0,5 m).

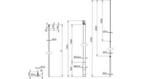
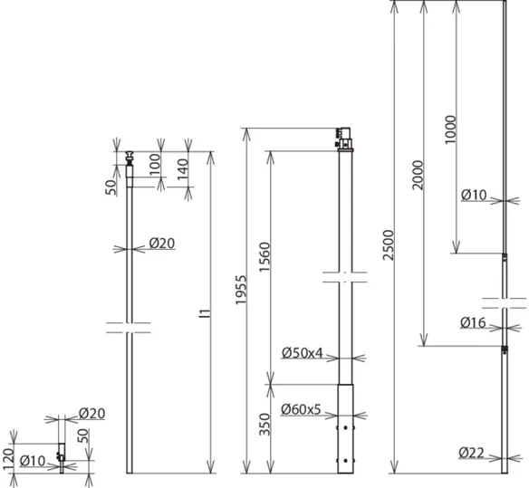
Conduttura HVI nel tubo portante con asta di captazione

1 Product

Part No. 819247 HVI 20 M L6M SR1955 FS2500 DSH GFK AL

GTIN 4013364260900, Customs tariff No. (EU): 85389099, Gross weight: 7.10 kg, PU: 1.00 pz.


Images

Additional information

Palo di captazione per posa sotto tetto della conduttura HVI
Palo di captazione con conduttura HVI e asta di captazione per
la posa sotto tetto con montaggio sul supporto per puntone
La conduttura HVI viene fatta passare attraverso il tubo di supporto del puntone
e posata nella zona della contro/copertura del tetto.
I tubi portanti sono dimensionati secondo
Eurocodice 1 (DIN EN 1991-1-4 + DIN EN 1991-1-4/NA).
Conduttura DEHNcon-H HVI nel tubo portante, con apposito
terminale situato internamente e asta di captazione Ø 22/16/10 mm, lunghezza 2500 mm
Materiale tubo portante: PRFV / Al
Lunghezza tubo portante : 1955 mm
Colore conduttura: nero ●
Materiale conduttore: Cu
Distanza di sicurezza equivalente s (in aria): ≤ 75 cm
Ordine minimo : 6 m
Max. velocità delle raffiche di vento : 140 km/h
Riferimento normativo: DIN IEC/TS 62561-8 (VDE V 0185-561-8)

Fabbricato: DEHN
Tipo: HVI 20 M L6M SR1955 FS2500 DSH GFK AL
Art.: 819247
o similare.

Certificates

 

Technical data

Materiale tubo portante PRFV / Al
Lunghezza tubo portante 1955 mm
Lunghezza asta di captazione 2500 mm
Diametro Ø esterno PRFV 50 mm
Diametro Ø conduttura 20 mm
Colore conduttura nero ●
Materiale conduttore Cu
Distanza di sicurezza equivalente s (in aria) ≤ 75 cm
Ordine minimo 6 m
Max. velocità delle raffiche di vento 140 km/h
Riferimento normativo DIN IEC/TS 62561-8 (VDE V 0185-561-8)

Product 819247 was added to Notepad.

Product 819247 was added to the cart.


back to top