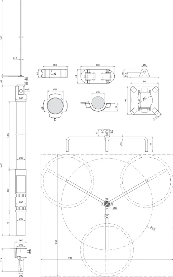
Pali di captazione per conduttura HVI light plus su tetti piani

Set completo composto da punta/asta di captazione, tubo portante, set di fissaggio (incl. piastra di connessione, supporti di materiale plastico, fascetta serracavo e captatore per equipotenzialità) e stativo.
Con possibilità di adattamento all’inclinazione del tetto fino a max 10°.
Lo zoccolo in cemento (peso 17 kg) e le piastre di base sono da ordinare separatamente.

Palo di captazione con tripode piccolo e punta di captazione

2 Products

Part No. 819685 FM D40 L2200 GFK AL V2A DBS R320 STTZN

GTIN 4013364494459, Customs tariff No. (EU): 85389099, Gross weight: 6.34 kg, PU: 1.00 pz.


Images

Additional information

Pali di captazione per conduttura HVI light plus su tetti piani
completi di piastra di connessione quadrupla per la
conduttura HVI light plus e di set di fissaggio per il montaggio
della conduttura sul palo di captazione.
Per il rispetto della distanza di separazione rispetto alle parti elettricamente
conduttive secondo la norma DIN EN 62305-3 (VDE 0185-305-3).
Tratto isolante in plastica rinforzata con fibra di vetro (PRFV)
Tubo Ø 40 mm
Fattore di materiale km = 0,7
Colore grigio chiaro, stabilizzato ai raggi UV
Pali di captazione dimensionati conformi
all'Eurocode 1 (DIN EN 1991-1-4 + DIN EN 1991-1-4/NA)
Adattamento all'inclinazione del tetto fino a max 10 gradi.
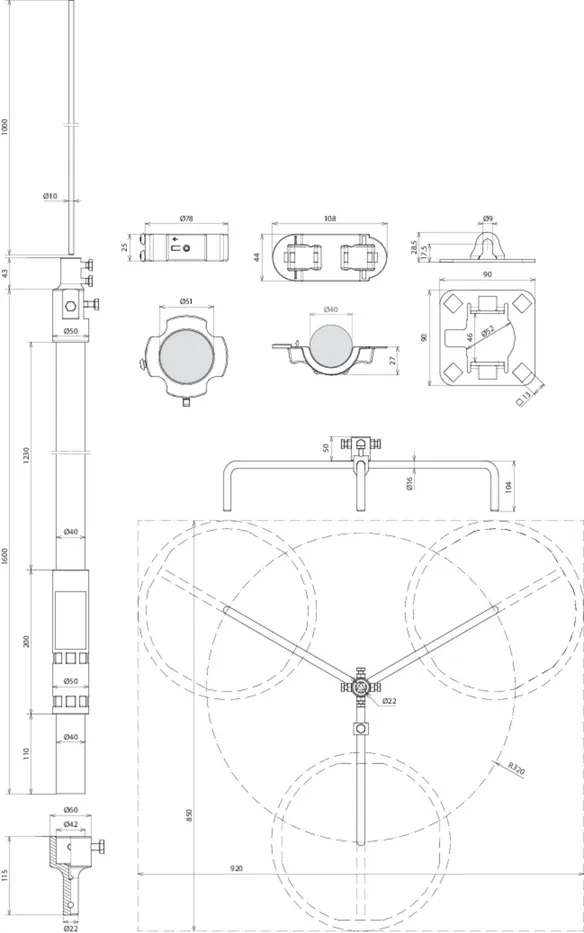
Palo di captazione per conduttura HVI light plus
Altezza complessiva 2200 mm
Lo zoccolo in cemento sovrapponibile (art. n. 102 010) e la
piastra di base (art. n. 102 050) sono da ordinare separatamente.
Materiale del supporto: Fe/tZn
Raggio dello stativo: 320 mm
Materiale del tubo portante: PRFV / Al
Lunghezza del tubo portante: 1600 mm
Tratto isolante: 1230 mm
Lunghezza della punta di captazione: 500 mm
Materiale della punta di captazione: INOX
Riferimento normativo: Specifica tecnica DIN IEC/TS 62561-8 (VDE V 0185-561-8)

Fabbricato: DEHN
Tipo: FM D40 L2200 GFK AL V2A DBS R320 STTZN
Art.: 819685
o similare.

Certificates

 

Technical data

Altezza 2200 mm
Materiale del supporto Fe/tZn
Raggio dello stativo 320 mm
Materiale del tubo portante PRFV / Al
Lunghezza del tubo portante 1600 mm
Lunghezza della punta di captazione 500 mm
Materiale della punta di captazione INOX
Riferimento normativo Specifica tecnica DIN IEC/TS 62561-8 (VDE V 0185-561-8)

Product 819685 was added to Notepad.

Product 819685 was added to the cart.

Part No. 819690 FM D40 L2700 GFK AL V2A DBS R320 STTZN

GTIN 4013364494466, Customs tariff No. (EU): 85389099, Gross weight: 6.61 kg, PU: 1.00 pz.


Images

Additional information

Pali di captazione per conduttura HVI light plus su tetti piani
completi di piastra di connessione quadrupla per la
conduttura HVI light plus e di set di fissaggio per il montaggio
della conduttura sul palo di captazione.
Per il rispetto della distanza di separazione rispetto alle parti elettricamente
conduttive secondo la norma DIN EN 62305-3 (VDE 0185-305-3).
Tratto isolante in plastica rinforzata con fibra di vetro (PRFV)
Tubo Ø 40 mm
Fattore di materiale km = 0,7
Colore grigio chiaro, stabilizzato ai raggi UV
Pali di captazione dimensionati conformi
all'Eurocode 1 (DIN EN 1991-1-4 + DIN EN 1991-1-4/NA)
Adattamento all'inclinazione del tetto fino a max 10 gradi.
Palo di captazione per conduttura HVI light plus
Altezza complessiva 2700 mm
Lo zoccolo in cemento sovrapponibile (art. n. 102 010) e la
piastra di base (art. n. 102 050) sono da ordinare separatamente.
Materiale del supporto: Fe/tZn
Raggio dello stativo: 320 mm
Materiale del tubo portante: PRFV / Al
Lunghezza del tubo portante: 1600 mm
Tratto isolante: 1230 mm
Lunghezza della punta di captazione: 1000 mm
Materiale della punta di captazione: INOX
Riferimento normativo: Specifica tecnica DIN IEC/TS 62561-8 (VDE V 0185-561-8)

Fabbricato: DEHN
Tipo: FM D40 L2700 GFK AL V2A DBS R320 STTZN
Art.: 819690
o similare.

Certificates

 

Technical data

Altezza 2700 mm
Materiale del supporto Fe/tZn
Raggio dello stativo 320 mm
Materiale del tubo portante PRFV / Al
Lunghezza del tubo portante 1600 mm
Lunghezza della punta di captazione 1000 mm
Materiale della punta di captazione INOX
Riferimento normativo Specifica tecnica DIN IEC/TS 62561-8 (VDE V 0185-561-8)

Product 819690 was added to Notepad.

Product 819690 was added to the cart.


Palo di captazione con tripode grande e punta di captazione

1 Product

Part No. 819682 FM D40 L2700 GFK AL V2A DBS R560 STTZN

GTIN 4013364494428, Customs tariff No. (EU): 85389099, Gross weight: 12.86 kg, PU: 1.00 pz.


Images

Additional information

Pali di captazione per conduttura HVI light plus su tetto piano
completa di piastra di connessione quadrupla per la
conduttura HVI light e set di fissaggio per il montaggio
della conduttura sul palo di captazione.
Per il rispetto della distanza di separazione rispetto alle parti elettricamente
conduttive secondo la norma DIN EN 62305-3 (VDE 0185-305-3).
Tratto isolante in plastica rinforzata con fibra di vetro (PRFV)
Tubo Ø 40 mm
Fattore di materiale km = 0,7
Colore grigio chiaro, stabilizzato ai raggi UV
I pali di captazione sono dimensionati conformi
all’Eurocode 1 (DIN EN 1991-1-4 + DIN EN 1991-1-4/NA) per una
velocità delle raffiche di vento non superiore a 200 km/h.
Adattamento all'inclinazione del tetto fino a max 10 gradi.
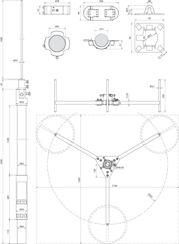
Palo di captazione per conduttura HVI light plus
Altezza complessiva 2700 mm
Lo zoccolo in cemento sovrapponibile (art. n. 102 010) e la
piastra di base (art. n. 102 050) sono da ordinare separatamente.
Materiale del supporto: Fe/tZn
Raggio dello stativo: 560 mm
Materiale del tubo portante: PRFV / Al
Lunghezza del tubo portante: 1600 mm
Tratto isolante: 1230 mm
Lunghezza della punta di captazione: 1000 mm
Materiale della punta di captazione: INOX
Riferimento normativo: Specifica tecnica DIN IEC/TS 62561-8 (VDE V 0185-561-8)

Fabbricato: DEHN
Tipo: FM D40 L2700 GFK AL V2A DBS R560 STTZN
Art.: 819682
o similare.

Certificates

 

Technical data

Altezza 2700 mm
Materiale del supporto Fe/tZn
Raggio dello stativo 560 mm
Materiale del tubo portante PRFV / Al
Lunghezza del tubo portante 1600 mm
Lunghezza della punta di captazione 1000 mm
Materiale della punta di captazione INOX
Riferimento normativo Specifica tecnica DIN IEC/TS 62561-8 (VDE V 0185-561-8)

Product 819682 was added to Notepad.

Product 819682 was added to the cart.


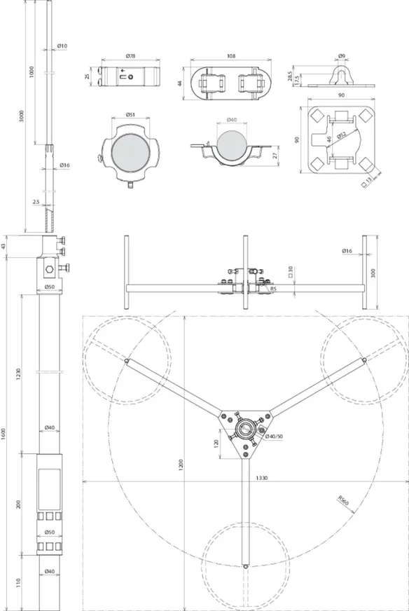
Palo di captazione con tripode grande e asta di captazione

2 Products

Part No. 819687 FM D40 L3700 GFK AL DBS R560 STTZN

GTIN 4013364494435, Customs tariff No. (EU): 85389099, Gross weight: 13.02 kg, PU: 1.00 pz.


Images

Additional information

Pali di captazione per conduttura HVI light plus su tetti piani
completi di piastra di connessione quadrupla per la
conduttura HVI light plus e di set di fissaggio per il montaggio
della conduttura sul palo di captazione.
Per il rispetto della distanza di separazione rispetto alle parti elettricamente
conduttive secondo la norma DIN EN 62305-3 (VDE 0185-305-3).
Tratto isolante in plastica rinforzata con fibra di vetro (PRFV)
Tubo Ø 40 mm
Fattore di materiale km = 0,7
Colore grigio chiaro, stabilizzato ai raggi UV
I pali di captazione sono dimensionati conformi
all’Eurocode 1 (DIN EN 1991-1-4 + DIN EN 1991-1-4/NA) per una
velocità delle raffiche di vento non superiore a 159 km/h.
Adattamento all'inclinazione del tetto fino a max 10 gradi.
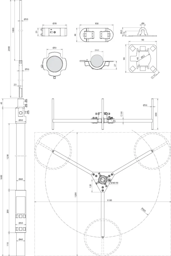
Palo di captazione 40 per conduttura HVI light plus
Altezza complessiva 3700 mm
Lo zoccolo in cemento sovrapponibile (art. n. 102 010) e la
piastra di base (art. n. 102 050) sono da ordinare separatamente.
Materiale del supporto: Fe/tZn
Raggio dello stativo: 560 mm
Materiale del tubo portante: PRFV / Al
Lunghezza del tubo portante: 1600 mm
Tratto isolante: 1230 mm
Lunghezza dell’asta di captazione: 2000 mm
Materiale dell’asta di captazione: AlMgSi
Riferimento normativo: Specifica tecnica DIN IEC/TS 62561-8 (VDE V 0185-561-8)

Fabbricato: DEHN
Tipo: FM D40 L3700 GFK AL DBS R560 STTZN
Art.: 819687
o similare.

Certificates

 

Technical data

Altezza 3700 mm
Materiale del supporto Fe/tZn
Raggio dello stativo 560 mm
Materiale del tubo portante PRFV / Al
Lunghezza del tubo portante 1600 mm
Lunghezza dell’asta di captazione 2000 mm
Materiale dell’asta di captazione AlMgSi
Riferimento normativo Specifica tecnica DIN IEC/TS 62561-8 (VDE V 0185-561-8)

Product 819687 was added to Notepad.

Product 819687 was added to the cart.

Part No. 819680 FM D40 L4700 GFK AL DBS R560 STTZN

GTIN 4013364494442, Customs tariff No. (EU): 85389099, Gross weight: 13.06 kg, PU: 1.00 pz.


Images

Additional information

Pali di captazione per conduttura HVI light plus su tetti piani
completi di piastra di connessione quadrupla per la
conduttura HVI light plus e di set di fissaggio per il montaggio
della conduttura sul palo di captazione.
Per il rispetto della distanza di separazione rispetto alle parti elettricamente
conduttive secondo la norma DIN EN 62305-3 (VDE 0185-305-3).
Tratto isolante in plastica rinforzata con fibra di vetro (PRFV)
Tubo Ø 40 mm
Fattore di materiale km = 0,7
Colore grigio chiaro, stabilizzato ai raggi UV
I pali di captazione sono dimensionati conformi
all’Eurocode 1 (DIN EN 1991-1-4 + DIN EN 1991-1-4/NA) per una
velocità delle raffiche di vento non superiore a 99 km/h.
Adattamento all'inclinazione del tetto fino a max 10 gradi.
Palo di captazione 40 per conduttura HVI light plus
Altezza complessiva 4700 mm
Lo zoccolo in cemento sovrapponibile (art. n. 102 010) e la
piastra di base (art. n. 102 050) sono da ordinare separatamente.
Materiale del supporto: Fe/tZn
Raggio dello stativo: 560 mm
Materiale del tubo portante: PRFV / Al
Lunghezza del tubo portante: 1600 mm
Tratto isolante: 1230 mm
Lunghezza dell’asta di captazione: 3000 mm
Materiale dell’asta di captazione: AlMgSi
Riferimento normativo: Specifica tecnica DIN IEC/TS 62561-8 (VDE V 0185-561-8)

Fabbricato: DEHN
Tipo: FM D40 L4700 GFK AL DBS R560 STTZN
Art.: 819680
o similare.

Certificates

 

Technical data

Altezza 4700 mm
Materiale del supporto Fe/tZn
Raggio dello stativo 560 mm
Materiale del tubo portante PRFV / Al
Lunghezza del tubo portante 1600 mm
Lunghezza dell’asta di captazione 3000 mm
Materiale dell’asta di captazione AlMgSi
Riferimento normativo Specifica tecnica DIN IEC/TS 62561-8 (VDE V 0185-561-8)

Product 819680 was added to Notepad.

Product 819680 was added to the cart.


back to top