Palo di captazione con conduttura HVI power

Per una lunghezza libera massima di tutto il captatore di 8,5 m, lunghezza minima d'ordine di 10 m. Il fissaggio deve avvenire con tre supporti variabili (art. n. 105 345).

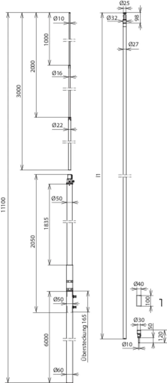
Il palo di captazione componibile è costituito da:
– asta di captazione Al Ø22 / 16 / 10 mm, lunghezza 3000 mm
– tubo portante PRFV/Al Ø50 / 60 mm, lunghezza 2300 mm (innesto superiore 200 mm)
– tubo del palo St/tZn Ø60 mm, lunghezza 6000 mm con viti di arresto M10 in acciaio INOX
– cavo HVI power posato all'interno
– lunghezza di trasporto 6000 mm

Palo di captazione con conduttura HVI power

Esecuzione con 1 x conduttura HVI power posata all'interno. Indicare la lunghezza della conduttura al momento dell'ordine (multipli di 0,5 m).

Lunghezza massima totale della conduttura HVI power 11,0 m per la classe di LPS I.
Lunghezza massima totale della conduttura HVI power 15,0 m per la classe di LPS II.
Lunghezza massima totale della conduttura HVI power 22,5 m per la classe di LPS III.

1 Product

Part No. 819760 FM 60 L11M IP HVIP L10M GFK AL STTZN

GTIN 4013364240391, Customs tariff No. (EU): 85389099, Gross weight: 57.89 kg, PU: 1.00 pz.

Predecessor

Images

Additional information

Pali di captazione con conduttura HVI power
Pali di captazione con conduttura HVI power
calata isolata resistente all’alta tensione,
per il rispetto della distanza di separazione
dalle parti elettricamente conduttive secondo la norma
DIN EN 62305-3 (VDE 0185-305-3)
Adatti all’impiego, ad es., in impianti di fermentazione o
per accumulatori di gas in impianti di biogas
secondo la classe di protezione II del sistema di protezione da fulmini.
I pali di captazione sono dimensionati conformi
all’Eurocode 1 (DIN EN 1991-1-4 + DIN EN 1991-1-4/NA).
Il dispositivo di captazione è costituito da:
-asta di captazione in Al Ø 22/16/10 mm lunghezza 3000 mm
-tubo portante PRFV/Al Ø 50/60 mm
-tubo del palo Fe/tZn Ø 60 mm
inoltre
3 pz. supporti variabili (art. n. 105 345)
Lunghezza libera massima dell’intero dispositivo di captazione: 8,5 m
Versione con 1x conduttura HVI power posata internamente,
Lunghezza minima ordinabile 10,0 m.
Le ulteriori, necessarie lunghezze della conduttura HVI power
sono da ordinare separatamente.
Massima lunghezza complessiva della conduttura HVI power (LPS I) 11,0 m.
Massima lunghezza complessiva della conduttura HVI power (LPS II) 15,0 m.
Massima lunghezza complessiva della conduttura HVI power (LPS III) 22,5 m.
Lunghezza totale palo: 11000 mm
Lunghezza asta di captazione: 3000 mm
Lunghezza tubo portante: 2300 mm
Lunghezza tubo palo: 6000 mm
Diametro Ø conduttore: 27 mm
Colore conduttura: nero ●
Materiale conduttore: Cu
Ordine minimo : 10 m
Ordine massimo: 35 m
Max. velocità delle raffiche di vento : (max lunghezza libera 8500 mm, 1 HVI power all’interno) 138 km/h
Riferimento normativo: DIN IEC/TS 62561-8 (VDE V 0185-561-8)

Fabbricato: DEHN
Tipo: FM 60 L11M IP HVIP L10M GFK AL STTZN
Art.: 819760
o similare.

Certificates

 

Technical data

Lunghezza totale palo 11000 mm
Lunghezza asta di captazione 3000 mm
Materiale asta di captazione Al
Lunghezza tubo portante 2300 mm
Materiale tubo portante PRFV / Al
Lunghezza tubo palo 6000 mm
Materiale tubo palo Fe/tZn
Diametro Ø conduttore 27 mm
Colore conduttura nero ●
Materiale conduttore Cu
Ordine minimo 10 m
Ordine massimo 35 m
Adatto per posa esterna al tubo no
Riferimento normativo DIN IEC/TS 62561-8 (VDE V 0185-561-8)

Product 819760 was added to Notepad.

Product 819760 was added to the cart.


back to top