Tubo portante con conduttura HVI power

Conduttura isolata resistente all'alta tensione per il rispetto della distanza di sicurezza verso parti elettricamente continue secondo la norma CEI EN 62305-3 (CEI 81-10/3).
Utilizzabile fino a una distanza di sicurezza equivalente di s ≤ 90 cm (in aria) oppure s ≤ 180 cm (muratura).

Posa non visibile della conduttura HVI power all’interno del tubo portante, con minima superficie esposta al vento.

Ordine minimo 6 m, indicare la lunghezza desiderata nell'ordine.
Vista la produzione riferita ad ogni singolo ordine (confezionamento della lunghezza del conduttore), il materiale non può essere reso.

Indicare la lunghezza del conduttore al momento dell'ordine (multipli di 0,5 m).

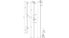
Conduttura HVI power nel tubo portante con punta di captazione

Tubo portante con terminale interno ed elemento a molla per l'equipotenzialità
Punta di captazione in acciaio INOX, Ø10 mm, lunghezza 1000 mm.

1 Product

Part No. 819430 HVI P 27 L6M SR3500 FSP1000 GFK V2A

GTIN 4013364152236, Customs tariff No. (EU): 85389099, Gross weight: 16.00 kg, PU: 1.00 pz.


Images

Additional information

Conduttura HVI power in tubo portante, lunghezza 3500 mm PRFV / INOX
Conduttura HVI power in tubo portante,
calata isolata resistente all’alta tensione, per il rispetto
della distanza di separazione dalle parti elettricamente conduttive
secondo la norma DIN EN 62305-3 (VDE 0185-305-3)
Distanza di separazione equivalente s =< 90 cm (in aria)
o s =< 180 cm (muratura).
I tubi portanti con conduttura HVI power sono dimensionati conformi
all’Eurocode 1 (DIN EN 1991-1-4 + DIN EN 1991-1-4/NA).
Conduttura HVI power posata nel tubo portante, con apposito
terminale situato internamente e punta di captazione Ø 10 mm lunghezza 1000 mm.
Materiale tubo portante: PRFV / INOX
Lunghezza tubo portante : 3500 mm
Lunghezza di trasporto: 3500 mm
Diametro Ø conduttura: 27 mm
Colore conduttura: nero ●
Materiale conduttore: Cu
Ordine minimo : 6 m
Ordine massimo: 35 m
Max. lunghezza libera con punta di captazione (montaggio a parete): 3500 mm
Velocità max delle raffiche di vento: (max lunghezza libera 3500 mm, 1 HVI power all’interno) 234 km/h
Riferimento normativo: DIN IEC/TS 62561-8 (VDE V 0185-561-8)

Fabbricato: DEHN
Tipo: HVI P 27 L6M SR3500 FSP1000 GFK V2A
Art.: 819430
o similare.

Certificates

 

Technical data

Materiale tubo portante PRFV / INOX
Lunghezza tubo portante 3500 mm
Lunghezza di trasporto 3500 mm
Diametro Ø conduttura 27 mm
Colore conduttura nero ●
Materiale conduttore Cu
Ordine minimo 6 m
Ordine massimo 35 m
Adatto per posa esterna al tubo no
Max. lunghezza libera con punta di captazione (montaggio a parete) 3500 mm
Riferimento normativo DIN IEC/TS 62561-8 (VDE V 0185-561-8)

Product 819430 was added to Notepad.

Product 819430 was added to the cart.


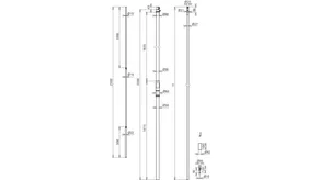
Conduttura HVI power nel tubo portante con asta di captazione

Tubo portante con terminale interno ed elemento a molla per l'equipotenzialità.
Asta di captazione in acciaio INOX, Ø22 / 16 / 10 mm, lunghezza 2500 mm.

2 Products

Part No. 819431 HVI P 27 L6M SR3500 FS2500 GFK V2A

GTIN 4013364155442, Customs tariff No. (EU): 85389099, Gross weight: 17.60 kg, PU: 1.00 pz.


Images

Additional information

Conduttura HVI power in tubo portante con asta di captazione, lunghezza 3500 mm PRFV / INOX
Conduttura HVI power in tubo portante,
calata isolata resistente all’alta tensione, per il rispetto
della distanza di separazione dalle parti elettricamente conduttive
secondo la norma DIN EN 62305-3 (VDE 0185-305-3)
Distanza di separazione equivalente s =< 90 cm (in aria)
o s =< 180 cm (muratura).
I tubi portanti con conduttura HVI power sono dimensionati conformi
all’Eurocode 1 (DIN EN 1991-1-4 + DIN EN 1991-1-4/NA).
Conduttura HVI power posata nel tubo portante, con apposito
terminale situato internamente e asta di captazione Ø 22/16/10 mm, lunghezza 2500 mm
Materiale tubo portante: PRFV / INOX
Lunghezza tubo portante : 3500 mm
Lunghezza di trasporto: 3500 mm
Diametro Ø conduttura: 27 mm
Colore conduttura: nero ●
Materiale conduttore: Cu
Ordine minimo : 6 m
Ordine massimo: 35 m
Max. lunghezza libera con punta di captazione (montaggio a parete): 5000 mm
Velocità max delle raffiche di vento: (max lunghezza libera 5000 mm, 1 HVI power all’interno) 163 km/h
Riferimento normativo: DIN IEC/TS 62561-8 (VDE V 0185-561-8)

Fabbricato: DEHN
Tipo: HVI P 27 L6M SR3500 FS2500 GFK V2A
Art.: 819431
o similare.

Certificates

 

Technical data

Materiale tubo portante PRFV / INOX
Lunghezza tubo portante 3500 mm
Lunghezza di trasporto 3500 mm
Diametro Ø conduttura 27 mm
Colore conduttura nero ●
Materiale conduttore Cu
Ordine minimo 6 m
Ordine massimo 35 m
Adatto per posa esterna al tubo no
Max. lunghezza libera con punta di captazione (montaggio a parete) 5000 mm
Riferimento normativo DIN IEC/TS 62561-8 (VDE V 0185-561-8)

Product 819431 was added to Notepad.

Product 819431 was added to the cart.

Part No. 819433 HVI P 27 L6M SR5000 FS2500 GFK V2A

GTIN 4013364155459, Customs tariff No. (EU): 85389099, Gross weight: 21.60 kg, PU: 1.00 pz.


Images

Additional information

Conduttura HVI power in tubo portante con asta di captazione, lunghezza 5000 mm PRFV / INOX
Conduttura HVI power in tubo portante,
calata isolata resistente all’alta tensione, per il rispetto
della distanza di separazione dalle parti elettricamente conduttive
secondo la norma DIN EN 62305-3 (VDE 0185-305-3)
Distanza di separazione equivalente s =< 90 cm (in aria)
o s =< 180 cm (muratura).
I tubi portanti con conduttura HVI power sono dimensionati conformi
all’Eurocode 1 (DIN EN 1991-1-4 + DIN EN 1991-1-4/NA).
Conduttura HVI power posata nel tubo portante, con apposito
terminale situato internamente e asta di captazione Ø 22/16/10 mm, lunghezza 2500 mm
Materiale tubo portante: PRFV / INOX
Lunghezza tubo portante : 5000 mm
Lunghezza di trasporto: 5000 mm
Diametro Ø conduttura: 27 mm
Colore conduttura: nero ●
Materiale conduttore: Cu
Ordine minimo : 6 m
Ordine massimo: 35 m
Max. lunghezza libera con punta di captazione (montaggio a parete): 5500 mm
Velocità max delle raffiche di vento: (max lunghezza libera 5500 mm, 1 HVI power all’interno) 159 km/h
Riferimento normativo: DIN IEC/TS 62561-8 (VDE V 0185-561-8)

Fabbricato: DEHN
Tipo: HVI P 27 L6M SR5000 FS2500 GFK V2A
Art.: 819433
o similare.

Certificates

 

Technical data

Materiale tubo portante PRFV / INOX
Lunghezza tubo portante 5000 mm
Lunghezza di trasporto 5000 mm
Diametro Ø conduttura 27 mm
Colore conduttura nero ●
Materiale conduttore Cu
Ordine minimo 6 m
Ordine massimo 35 m
Adatto per posa esterna al tubo no
Max. lunghezza libera con punta di captazione (montaggio a parete) 5500 mm
Riferimento normativo DIN IEC/TS 62561-8 (VDE V 0185-561-8)

Product 819433 was added to Notepad.

Product 819433 was added to the cart.


back to top