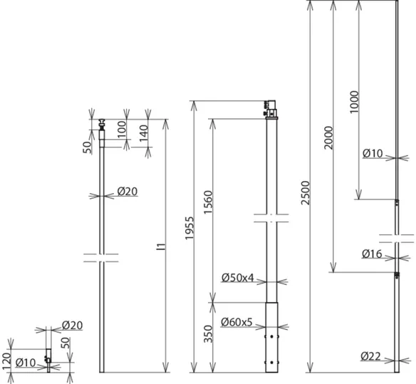
Part No. 819247 HVI 20 M L6M SR1955 FS2500 DSH GFK AL
GTIN 4013364260900, Customs tariff No. (EU): 85389099, Gross weight: 7.10 kg, PU: 1.00 pièce(s)
Technical data
| Matériau - tube support | PRV / Al | 
| Longueur - tube support | 1955 mm | 
| Longueur pointe captrice | 2500 mm | 
| Diamètre Ø extérieur GFK | 50 mm | 
| Diamètre Ø - conducteur | 20 mm | 
| Couleur - conducteur | noir ● | 
| Matériau - conducteur | Cu | 
| Distance de séparation équivalente s (dans l'air) | ≤ 75 cm | 
| Commande min. | 6 m | 
| Vitesse de vent/rafales max. | 140 km/h | 
| Norme | DIN IEC/TS 62561-8 (VDE V 0185-561-8) |