Fangmast mit HVI Leitung

Für eine maximale freie Länge der gesamten Fangeinrichtung von 8,5 m.
Die Befestigung muss mit drei variablen Haltern (Art.-Nr. 105 345) erfolgen.

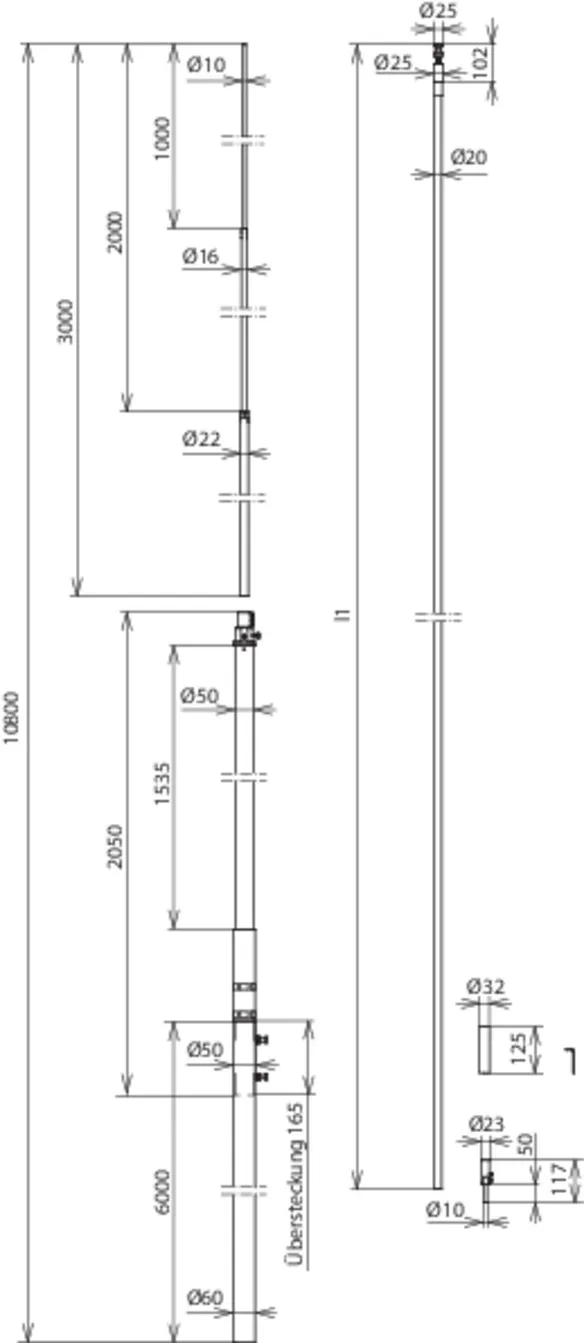
Der teilbare Fangmast besteht aus:
– Fangstange Al Ø22 / 16 / 10 mm, Länge 3000 mm
– Stützrohr GFK/Al Ø50 / 60 mm, Länge 2100 mm (Übersteckung 200 mm)
– Mastrohr St/tZn Ø60 mm, Länge 6000 mm mit Arretierungsschrauben M10 aus NIRO
– HVI Leitung innen verlegt
– Transportlänge 6000 mm

Ausführung mit 1x HVI Leitung innenverlegt. Leitungslänge bei Bestellung angeben (0,5 m Schritte).

Maximale Gesamtlänge der HVI Leitung 12,5 m bei der Schutzklasse II des Blitzschutzsystems.
Maximale Gesamtlänge der HVI Leitung 18,5 m bei der Schutzklasse III des Blitzschutzsystems.

1 Product

Part No. 819730 FM 60 L11M IP HVI M L10M GFK AL STTZN

GTIN 4013364243477, Customs tariff No. (EU): 85389099, Gross weight: 53.54 kg, PU: 1.00 Stk.

Predecessor

Images

Additional information

Fangmaste mit HVI Leitung
Fangmaste mit HVI Leitung
hochspannungsfeste isolierte Ableitung
zum Einhalten des Trennungsabstandes
zu elektrisch leitenden Teilen
nach DIN EN 62305-3 (VDE 0185-305-3)
Speziell für den Einsatz z.B. bei Fermentern oder
Gasspeichern von Biogasanlagen
nach der Schutzklasse II des Blitzschutzsystems.
Die Fangmaste sind nach
Eurocode 1 (DIN EN 1991-1-4 + DIN EN 1991-1-4/NA) dimensioniert.
Die Fangeinrichtung besteht aus:
-Fangstange Al Ø22/16/10 mm Länge 3000 mm
-Stützrohr GFK/Al Ø50/60 mm
-Mastrohr St/tZn Ø60 mm
zuzüglich
3 Stück variablen Halter (Art.-Nr. 105 345)
Maximale freie Länge der gesamten Fangeinrichtung von 8,5 m.
Ausführung mit 1x HVI Leitung innenverlegt,
Mindestbestelllänge 10,0 m.
Die weitere erforderliche Leitungslänge der HVI Leitung
ist separat zu bestellen.
Maximale Gesamtlänge der HVI Leitungen (LPS II) 12,5 m.
Maximale Gesamtlänge der HVI Leitungen (LPS III) 18,5 m.
Fangmastlänge gesamt: 10800 mm
Länge Fangstange: 3000 mm
Länge Stützrohr: 2100 mm
Länge Mastrohr: 6000 mm
Durchmesser Ø Leiter: 20 mm
Farbe Leitung: schwarz ●
Werkstoff Leiter: Cu
Mindestbestelllänge: 10 m
Max. Böenwindgeschwindigkeit: (max. freie Länge 8500 mm, 1x HVI innen) 156 km/h
Normenbezug: DIN IEC/TS 62561-8 (VDE V 0185-561-8)

Fabrikat: DEHN
Typ: FM 60 L11M IP HVI M L10M GFK AL STTZN
Art.-Nr.: 819730
oder gleichwertig.

Certificates

 

Technical data

Fangmastlänge gesamt 10800 mm
Länge Fangstange 3000 mm
Länge Stützrohr 2100 mm
Länge Mastrohr 6000 mm
Farbe Leitung schwarz ●
Mindestbestelllänge 10 m
Normenbezug DIN IEC/TS 62561-8 (VDE V 0185-561-8)

Product 819730 was added to Notepad.

Product 819730 was added to the cart.


back to top