Metalldachhalter

Metalldachhalter NIRO für HVI Fangeinrichtungen oder Fangstangen:

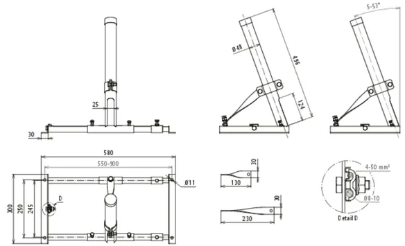
Halter geeignet zur lotrechten Montage von Fangeinrichtungen auf Metalldächern bis zu einer max. Dachneigung von 53°.

Der Metalldachhalter kann auf geeignete, tragfähige Unterkonstruktionen montiert werden. Der Metalldachhalter ist konzipiert für ein eingeleitetes Moment bis 320 Nm.

Zur Befestigung von Fangstangen D40 / D50 sowie zur Aufsatzmontage von HVI light plus- und HVI Stützrohren mit innerer Leitungsverlegung.

Hinweis: Die Montagesituation ist bauseits mit dem Gebäudeerrichter abzuklären.

1 Product

Part No. 105241 MDH D48 VB550.900 V2A

GTIN 4013364361225, Customs tariff No. (EU): 73089098, Gross weight: 5.26 kg, PU: 1.00 Stk.


Images

Additional information

Metalldachhalter NIRO
Metalldachhalter zur lotrechten Montage
für HVI-Fangeinrichtungen oder Fangstangen
Werkstoff: NIRO
Verstellbereich: 550-900 mm
Dachneigung: 5-53°

Fabrikat: DEHN
Typ: MDH D48 VB550.900 V2A
Art.-Nr.: 105241
oder gleichwertig.

 

Technical data

Werkstoff NIRO
Verstellbereich 550-900 mm
Dachneigung 5-53°
Normenbezug DIN EN 62561-1

Product 105241 was added to Notepad.

Product 105241 was added to the cart.


back to top